イイコトテラス筑前深江
自然と利便性が調和する糸島市二丈深江に分譲地が誕生。
JR筑肥線「筑前深江」駅まで徒歩10分圏内と、通勤・通学にも便利な立地です。
周辺は落ち着いた住環境が広がり、子育て世帯にもおすすめ。
海や山の自然を身近に感じながら、快適な暮らしを叶える理想の住まいをここからはじめませんか。
徒歩10分以内 徒歩10分以内に
保育園・幼稚園 徒歩20分以内に
小学校 徒歩10分以内に
中学校 徒歩20分以内に
スーパー 徒歩10分以内に
公園 閑静な住宅街 前面道路
6メートル以上 角地 50坪以上 60坪以上 整形地
公開中の区画情報
(54.23坪)
(35.06坪)
(52.49坪)
(35.56坪)
(54.58坪)
(28.55坪)
(51.67坪)
(32.05坪)
(59.32坪)
(33.06坪)
(51.87坪)
(31.06坪)
(66.51坪)
(31.30坪)
間取り図・建物情報
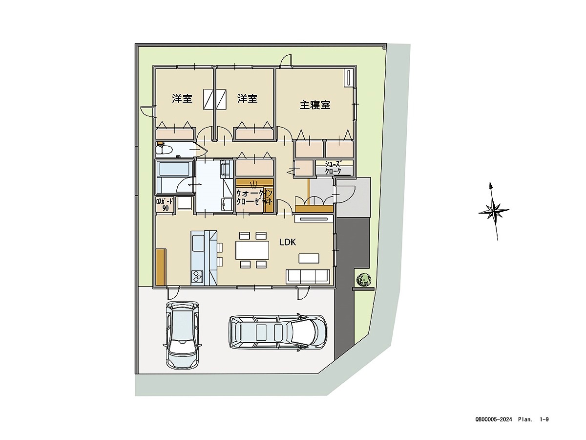
区画番号 19 間取り図
- 高性能仕様
- 設備充実
- 収納充実
- 安心安全
太陽光10kW以上搭載 | 耐震等級3 | 長期優良住宅 | 外壁全面タイル貼り | 全館床暖房 | 熱交換換気システム(ロスガード90) | 高性能樹脂サッシ(高機能Low-Eガラス) | オール電化住宅 | 蓄電池 | 4LDK | 車3台駐車可能 | LED照明 | 吹き抜け | 和室・畳コーナー | ウォークインクローゼット | シューズクローク | 階段下収納 | 室内物干しスペース | 対面キッチン | キッズカウンターキッチン | 高性能人造大理石トップ | IHクッキングヒーター | 食器洗い乾燥機 | カップボード | 両面開き三面鏡付き洗面化粧台 | 真空断熱保温浴槽 | エコキュート | トイレ2ヵ所 | 温水洗浄暖房機能付便座 | オリジナルトイレ収納 | 火災警報器 | 長期30年保証
区画番号 19 ZEH水準を達成した高気密・高断熱住宅です。小さなエネルギーで冷暖房でき、省エネな暮らしが実現します。
- 高性能仕様
- 設備充実
- 収納充実
- 安心安全
太陽光10kW以上搭載 | 耐震等級3 | 長期優良住宅 | 外壁全面タイル貼り | 全館床暖房 | 熱交換換気システム(ロスガード90) | 高性能樹脂サッシ(高機能Low-Eガラス) | オール電化住宅 | 蓄電池 | 4LDK | 車3台駐車可能 | LED照明 | 吹き抜け | 和室・畳コーナー | ウォークインクローゼット | シューズクローク | 階段下収納 | 室内物干しスペース | 対面キッチン | キッズカウンターキッチン | 高性能人造大理石トップ | IHクッキングヒーター | 食器洗い乾燥機 | カップボード | 両面開き三面鏡付き洗面化粧台 | 真空断熱保温浴槽 | エコキュート | トイレ2ヵ所 | 温水洗浄暖房機能付便座 | オリジナルトイレ収納 | 火災警報器 | 長期30年保証
区画番号 19
- 高性能仕様
- 設備充実
- 収納充実
- 安心安全
太陽光10kW以上搭載 | 耐震等級3 | 長期優良住宅 | 外壁全面タイル貼り | 全館床暖房 | 熱交換換気システム(ロスガード90) | 高性能樹脂サッシ(高機能Low-Eガラス) | オール電化住宅 | 蓄電池 | 4LDK | 車3台駐車可能 | LED照明 | 吹き抜け | 和室・畳コーナー | ウォークインクローゼット | シューズクローク | 階段下収納 | 室内物干しスペース | 対面キッチン | キッズカウンターキッチン | 高性能人造大理石トップ | IHクッキングヒーター | 食器洗い乾燥機 | カップボード | 両面開き三面鏡付き洗面化粧台 | 真空断熱保温浴槽 | エコキュート | トイレ2ヵ所 | 温水洗浄暖房機能付便座 | オリジナルトイレ収納 | 火災警報器 | 長期30年保証
区画番号 34 間取り図
- 高性能仕様
- 設備充実
- 収納充実
- 安心安全
太陽光10kW以上搭載 | 耐震等級3 | 長期優良住宅 | 外壁全面タイル貼り | 全館床暖房 | 熱交換換気システム(ロスガード90) | 高性能樹脂サッシ(高機能Low-Eガラス) | オール電化住宅 | 蓄電池 | 4LDK | 車3台駐車可能 | LED照明 | 吹き抜け | リビング階段 | 和室・畳コーナー | ウォークインクローゼット | シューズクローク | 階段下収納 | 室内物干しスペース | 対面キッチン | キッズカウンターキッチン | 高性能人造大理石トップ | IHクッキングヒーター | 食器洗い乾燥機 | カップボード | 両面開き三面鏡付き洗面化粧台 | 真空断熱保温浴槽 | エコキュート | トイレ2ヵ所 | 温水洗浄暖房機能付便座 | オリジナルトイレ収納 | 火災警報器 | 長期30年保証
区画番号 34 ZEH水準を達成した高気密・高断熱住宅です。小さなエネルギーで冷暖房でき、省エネな暮らしが実現します。
- 高性能仕様
- 設備充実
- 収納充実
- 安心安全
太陽光10kW以上搭載 | 耐震等級3 | 長期優良住宅 | 外壁全面タイル貼り | 全館床暖房 | 熱交換換気システム(ロスガード90) | 高性能樹脂サッシ(高機能Low-Eガラス) | オール電化住宅 | 蓄電池 | 4LDK | 車3台駐車可能 | LED照明 | 吹き抜け | リビング階段 | 和室・畳コーナー | ウォークインクローゼット | シューズクローク | 階段下収納 | 室内物干しスペース | 対面キッチン | キッズカウンターキッチン | 高性能人造大理石トップ | IHクッキングヒーター | 食器洗い乾燥機 | カップボード | 両面開き三面鏡付き洗面化粧台 | 真空断熱保温浴槽 | エコキュート | トイレ2ヵ所 | 温水洗浄暖房機能付便座 | オリジナルトイレ収納 | 火災警報器 | 長期30年保証
区画番号 34
- 高性能仕様
- 設備充実
- 収納充実
- 安心安全
太陽光10kW以上搭載 | 耐震等級3 | 長期優良住宅 | 外壁全面タイル貼り | 全館床暖房 | 熱交換換気システム(ロスガード90) | 高性能樹脂サッシ(高機能Low-Eガラス) | オール電化住宅 | 蓄電池 | 4LDK | 車3台駐車可能 | LED照明 | 吹き抜け | リビング階段 | 和室・畳コーナー | ウォークインクローゼット | シューズクローク | 階段下収納 | 室内物干しスペース | 対面キッチン | キッズカウンターキッチン | 高性能人造大理石トップ | IHクッキングヒーター | 食器洗い乾燥機 | カップボード | 両面開き三面鏡付き洗面化粧台 | 真空断熱保温浴槽 | エコキュート | トイレ2ヵ所 | 温水洗浄暖房機能付便座 | オリジナルトイレ収納 | 火災警報器 | 長期30年保証
区画番号 25 間取り図
- 高性能仕様
- 設備充実
- 収納充実
- 安心安全
太陽光10kW以上搭載 | 耐震等級3 | 長期優良住宅 | 外壁全面タイル貼り | 全館床暖房 | 熱交換換気システム(ロスガード90) | 高性能樹脂サッシ(高機能Low-Eガラス) | オール電化住宅 | 蓄電池 | 平屋 | 3LDK | 車2台駐車可能 | LED照明 | ウォークインクローゼット | シューズクローク | 室内物干しスペース | 対面キッチン | キッズカウンターキッチン | 高性能人造大理石トップ | IHクッキングヒーター | 食器洗い乾燥機 | カップボード | 両面開き三面鏡付き洗面化粧台 | 真空断熱保温浴槽 | エコキュート | 温水洗浄暖房機能付便座 | オリジナルトイレ収納 | 火災警報器 | 長期30年保証
区画番号 25 ZEH水準を達成した高気密・高断熱住宅です。小さなエネルギーで冷暖房でき、省エネな暮らしが実現します。
- 高性能仕様
- 設備充実
- 収納充実
- 安心安全
太陽光10kW以上搭載 | 耐震等級3 | 長期優良住宅 | 外壁全面タイル貼り | 全館床暖房 | 熱交換換気システム(ロスガード90) | 高性能樹脂サッシ(高機能Low-Eガラス) | オール電化住宅 | 蓄電池 | 平屋 | 3LDK | 車2台駐車可能 | LED照明 | ウォークインクローゼット | シューズクローク | 室内物干しスペース | 対面キッチン | キッズカウンターキッチン | 高性能人造大理石トップ | IHクッキングヒーター | 食器洗い乾燥機 | カップボード | 両面開き三面鏡付き洗面化粧台 | 真空断熱保温浴槽 | エコキュート | 温水洗浄暖房機能付便座 | オリジナルトイレ収納 | 火災警報器 | 長期30年保証
区画番号 25
- 高性能仕様
- 設備充実
- 収納充実
- 安心安全
太陽光10kW以上搭載 | 耐震等級3 | 長期優良住宅 | 外壁全面タイル貼り | 全館床暖房 | 熱交換換気システム(ロスガード90) | 高性能樹脂サッシ(高機能Low-Eガラス) | オール電化住宅 | 蓄電池 | 平屋 | 3LDK | 車2台駐車可能 | LED照明 | ウォークインクローゼット | シューズクローク | 室内物干しスペース | 対面キッチン | キッズカウンターキッチン | 高性能人造大理石トップ | IHクッキングヒーター | 食器洗い乾燥機 | カップボード | 両面開き三面鏡付き洗面化粧台 | 真空断熱保温浴槽 | エコキュート | 温水洗浄暖房機能付便座 | オリジナルトイレ収納 | 火災警報器 | 長期30年保証
区画番号 41 間取り図
- 高性能仕様
- 設備充実
- 収納充実
- 安心安全
太陽光10kW以上搭載 | 耐震等級3 | 長期優良住宅 | 外壁全面タイル貼り | 全館床暖房 | 熱交換換気システム(ロスガード90) | 高性能樹脂サッシ(高機能Low-Eガラス) | オール電化住宅 | 蓄電池 | 3LDK | 車3台駐車可能 | LED照明 | リビング階段 | ウォークインクローゼット | シューズクローク | 階段下収納 | 室内物干しスペース | 対面キッチン | キッズカウンターキッチン | 高性能人造大理石トップ | IHクッキングヒーター | 食器洗い乾燥機 | カップボード | 両面開き三面鏡付き洗面化粧台 | 真空断熱保温浴槽 | エコキュート | トイレ2ヵ所 | 温水洗浄暖房機能付便座 | オリジナルトイレ収納 | 火災警報器 | 長期30年保証
区画番号 41 ZEH水準を達成した高気密・高断熱住宅です。小さなエネルギーで冷暖房でき、省エネな暮らしが実現します。
- 高性能仕様
- 設備充実
- 収納充実
- 安心安全
太陽光10kW以上搭載 | 耐震等級3 | 長期優良住宅 | 外壁全面タイル貼り | 全館床暖房 | 熱交換換気システム(ロスガード90) | 高性能樹脂サッシ(高機能Low-Eガラス) | オール電化住宅 | 蓄電池 | 3LDK | 車3台駐車可能 | LED照明 | リビング階段 | ウォークインクローゼット | シューズクローク | 階段下収納 | 室内物干しスペース | 対面キッチン | キッズカウンターキッチン | 高性能人造大理石トップ | IHクッキングヒーター | 食器洗い乾燥機 | カップボード | 両面開き三面鏡付き洗面化粧台 | 真空断熱保温浴槽 | エコキュート | トイレ2ヵ所 | 温水洗浄暖房機能付便座 | オリジナルトイレ収納 | 火災警報器 | 長期30年保証
区画番号 41
- 高性能仕様
- 設備充実
- 収納充実
- 安心安全
太陽光10kW以上搭載 | 耐震等級3 | 長期優良住宅 | 外壁全面タイル貼り | 全館床暖房 | 熱交換換気システム(ロスガード90) | 高性能樹脂サッシ(高機能Low-Eガラス) | オール電化住宅 | 蓄電池 | 3LDK | 車3台駐車可能 | LED照明 | リビング階段 | ウォークインクローゼット | シューズクローク | 階段下収納 | 室内物干しスペース | 対面キッチン | キッズカウンターキッチン | 高性能人造大理石トップ | IHクッキングヒーター | 食器洗い乾燥機 | カップボード | 両面開き三面鏡付き洗面化粧台 | 真空断熱保温浴槽 | エコキュート | トイレ2ヵ所 | 温水洗浄暖房機能付便座 | オリジナルトイレ収納 | 火災警報器 | 長期30年保証
区画番号 17 間取り図
- 高性能仕様
- 設備充実
- 収納充実
- 安心安全
太陽光10kW以上搭載 | 耐震等級3 | 長期優良住宅 | 外壁全面タイル貼り | 全館床暖房 | 熱交換換気システム(ロスガード90) | 高性能樹脂サッシ(高機能Low-Eガラス) | オール電化住宅 | 蓄電池 | 3LDK | 車3台駐車可能 | LED照明 | ウォークインクローゼット | シューズクローク | 階段下収納 | 室内物干しスペース | 対面キッチン | キッズカウンターキッチン | 高性能人造大理石トップ | IHクッキングヒーター | 食器洗い乾燥機 | カップボード | 両面開き三面鏡付き洗面化粧台 | 真空断熱保温浴槽 | エコキュート | トイレ2ヵ所 | 温水洗浄暖房機能付便座 | オリジナルトイレ収納 | 火災警報器 | 長期30年保証
区画番号 17 ZEH水準を達成した高気密・高断熱住宅です。小さなエネルギーで冷暖房でき、省エネな暮らしが実現します。
- 高性能仕様
- 設備充実
- 収納充実
- 安心安全
太陽光10kW以上搭載 | 耐震等級3 | 長期優良住宅 | 外壁全面タイル貼り | 全館床暖房 | 熱交換換気システム(ロスガード90) | 高性能樹脂サッシ(高機能Low-Eガラス) | オール電化住宅 | 蓄電池 | 3LDK | 車3台駐車可能 | LED照明 | ウォークインクローゼット | シューズクローク | 階段下収納 | 室内物干しスペース | 対面キッチン | キッズカウンターキッチン | 高性能人造大理石トップ | IHクッキングヒーター | 食器洗い乾燥機 | カップボード | 両面開き三面鏡付き洗面化粧台 | 真空断熱保温浴槽 | エコキュート | トイレ2ヵ所 | 温水洗浄暖房機能付便座 | オリジナルトイレ収納 | 火災警報器 | 長期30年保証
区画番号 17
- 高性能仕様
- 設備充実
- 収納充実
- 安心安全
太陽光10kW以上搭載 | 耐震等級3 | 長期優良住宅 | 外壁全面タイル貼り | 全館床暖房 | 熱交換換気システム(ロスガード90) | 高性能樹脂サッシ(高機能Low-Eガラス) | オール電化住宅 | 蓄電池 | 3LDK | 車3台駐車可能 | LED照明 | ウォークインクローゼット | シューズクローク | 階段下収納 | 室内物干しスペース | 対面キッチン | キッズカウンターキッチン | 高性能人造大理石トップ | IHクッキングヒーター | 食器洗い乾燥機 | カップボード | 両面開き三面鏡付き洗面化粧台 | 真空断熱保温浴槽 | エコキュート | トイレ2ヵ所 | 温水洗浄暖房機能付便座 | オリジナルトイレ収納 | 火災警報器 | 長期30年保証
区画番号 39 間取り図
- 高性能仕様
- 設備充実
- 収納充実
- 安心安全
太陽光10kW以上搭載 | 耐震等級3 | 長期優良住宅 | 外壁全面タイル貼り | 全館床暖房 | 熱交換換気システム(ロスガード90) | 高性能樹脂サッシ(高機能Low-Eガラス) | オール電化住宅 | 蓄電池 | 3LDK | 車3台駐車可能 | LED照明 | 吹き抜け | リビング階段 | ウォークインクローゼット | シューズクローク | 階段下収納 | 室内物干しスペース | 対面キッチン | キッズカウンターキッチン | 高性能人造大理石トップ | IHクッキングヒーター | 食器洗い乾燥機 | カップボード | 両面開き三面鏡付き洗面化粧台 | 真空断熱保温浴槽 | エコキュート | トイレ2ヵ所 | 温水洗浄暖房機能付便座 | オリジナルトイレ収納 | 火災警報器 | 長期30年保証
区画番号 39 ZEH水準を達成した高気密・高断熱住宅です。小さなエネルギーで冷暖房でき、省エネな暮らしが実現します。
- 高性能仕様
- 設備充実
- 収納充実
- 安心安全
太陽光10kW以上搭載 | 耐震等級3 | 長期優良住宅 | 外壁全面タイル貼り | 全館床暖房 | 熱交換換気システム(ロスガード90) | 高性能樹脂サッシ(高機能Low-Eガラス) | オール電化住宅 | 蓄電池 | 3LDK | 車3台駐車可能 | LED照明 | 吹き抜け | リビング階段 | ウォークインクローゼット | シューズクローク | 階段下収納 | 室内物干しスペース | 対面キッチン | キッズカウンターキッチン | 高性能人造大理石トップ | IHクッキングヒーター | 食器洗い乾燥機 | カップボード | 両面開き三面鏡付き洗面化粧台 | 真空断熱保温浴槽 | エコキュート | トイレ2ヵ所 | 温水洗浄暖房機能付便座 | オリジナルトイレ収納 | 火災警報器 | 長期30年保証
区画番号 39
- 高性能仕様
- 設備充実
- 収納充実
- 安心安全
太陽光10kW以上搭載 | 耐震等級3 | 長期優良住宅 | 外壁全面タイル貼り | 全館床暖房 | 熱交換換気システム(ロスガード90) | 高性能樹脂サッシ(高機能Low-Eガラス) | オール電化住宅 | 蓄電池 | 3LDK | 車3台駐車可能 | LED照明 | 吹き抜け | リビング階段 | ウォークインクローゼット | シューズクローク | 階段下収納 | 室内物干しスペース | 対面キッチン | キッズカウンターキッチン | 高性能人造大理石トップ | IHクッキングヒーター | 食器洗い乾燥機 | カップボード | 両面開き三面鏡付き洗面化粧台 | 真空断熱保温浴槽 | エコキュート | トイレ2ヵ所 | 温水洗浄暖房機能付便座 | オリジナルトイレ収納 | 火災警報器 | 長期30年保証
区画番号 22 間取り図
- 高性能仕様
- 設備充実
- 収納充実
- 安心安全
太陽光10kW以上搭載 | 耐震等級3 | 長期優良住宅 | 外壁全面タイル貼り | 全館床暖房 | 熱交換換気システム(ロスガード90) | 高性能樹脂サッシ(高機能Low-Eガラス) | オール電化住宅 | 蓄電池 | 4LDK | 車3台駐車可能 | LED照明 | 和室・畳コーナー | ウォークインクローゼット | 階段下収納 | 室内物干しスペース | 対面キッチン | キッズカウンターキッチン | 高性能人造大理石トップ | IHクッキングヒーター | 食器洗い乾燥機 | カップボード | 両面開き三面鏡付き洗面化粧台 | 真空断熱保温浴槽 | エコキュート | トイレ2ヵ所 | 温水洗浄暖房機能付便座 | オリジナルトイレ収納 | 火災警報器 | 長期30年保証
区画番号 22 ZEH水準を達成した高気密・高断熱住宅です。小さなエネルギーで冷暖房でき、省エネな暮らしが実現します。
- 高性能仕様
- 設備充実
- 収納充実
- 安心安全
太陽光10kW以上搭載 | 耐震等級3 | 長期優良住宅 | 外壁全面タイル貼り | 全館床暖房 | 熱交換換気システム(ロスガード90) | 高性能樹脂サッシ(高機能Low-Eガラス) | オール電化住宅 | 蓄電池 | 4LDK | 車3台駐車可能 | LED照明 | 和室・畳コーナー | ウォークインクローゼット | 階段下収納 | 室内物干しスペース | 対面キッチン | キッズカウンターキッチン | 高性能人造大理石トップ | IHクッキングヒーター | 食器洗い乾燥機 | カップボード | 両面開き三面鏡付き洗面化粧台 | 真空断熱保温浴槽 | エコキュート | トイレ2ヵ所 | 温水洗浄暖房機能付便座 | オリジナルトイレ収納 | 火災警報器 | 長期30年保証
区画番号 22
- 高性能仕様
- 設備充実
- 収納充実
- 安心安全
太陽光10kW以上搭載 | 耐震等級3 | 長期優良住宅 | 外壁全面タイル貼り | 全館床暖房 | 熱交換換気システム(ロスガード90) | 高性能樹脂サッシ(高機能Low-Eガラス) | オール電化住宅 | 蓄電池 | 4LDK | 車3台駐車可能 | LED照明 | 和室・畳コーナー | ウォークインクローゼット | 階段下収納 | 室内物干しスペース | 対面キッチン | キッズカウンターキッチン | 高性能人造大理石トップ | IHクッキングヒーター | 食器洗い乾燥機 | カップボード | 両面開き三面鏡付き洗面化粧台 | 真空断熱保温浴槽 | エコキュート | トイレ2ヵ所 | 温水洗浄暖房機能付便座 | オリジナルトイレ収納 | 火災警報器 | 長期30年保証
周辺環境
物件概要
東京都江東区木場五丁目10-10
03-5245-0111
宅建業免許:国土交通大臣(7)第5369号
建設業許可:国土交通大臣(特-7)第10540号
公益社団法人首都圏不動産公正取引協議会加盟
一般社団法人全国住宅産業協会加盟
東京都江東区木場五丁目10-10
03-5245-0111
宅建業免許:国土交通大臣(7)第5369号
建設業許可:国土交通大臣(特-7)第10540号
公益社団法人首都圏不動産公正取引協議会加盟
一般社団法人全国住宅産業協会加盟
イイコトテラス筑前深江 19:2026年12月
イイコトテラス筑前深江 22:2026年12月
イイコトテラス筑前深江 25:2026年12月
イイコトテラス筑前深江 34:2026年12月
イイコトテラス筑前深江 39:2026年12月
イイコトテラス筑前深江 41:2026年12月
イイコトテラス筑前深江 19:2027年01月
イイコトテラス筑前深江 22:2027年01月
イイコトテラス筑前深江 25:2027年01月
イイコトテラス筑前深江 34:2027年01月
イイコトテラス筑前深江 39:2027年01月
イイコトテラス筑前深江 41:2027年01月
見学予約/資料請求はこちら
見学予約/資料請求
お申し込みはこちら
分譲地に関するご質問など、
お気軽にご相談ください!
土地探しや家づくりに
お困りではありませんか?
お土地探しや資金計画など、何でもお気軽にご相談ください。
お客様の理想の住まいづくりを、サポートさせていただきます。
土地探しでお困りですか?
良い土地を見つけるための参考書
パンフレットを、無料でプレゼント。
失敗しないためのポイントをご紹介します。





