ラポールタウン名寄
ラポールタウン名寄にて一条工務店の宿泊体験棟が販売開始しました!
新しいお家が立ち並び、子育て世代の方にもおすすめな物件です。
ぜひ、ご見学してみてはいかがでしょうか?
小学校 徒歩10分以内に
中学校 閑静な住宅街 日当たり良好 前面道路
6メートル以上 60坪以上 整形地
公開中の区画情報
(84.22坪)
(31.05坪)
間取り図・建物情報
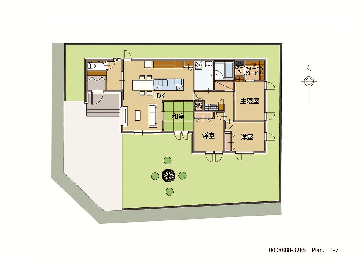
区画番号 16 間取り図
- 高性能仕様
- 設備充実
- 収納充実
- 安心安全
太陽光10kW以上搭載 | 耐震等級3 | 長期優良住宅 | 外壁全面タイル貼り | 全館床暖房 | 熱交換換気システム(ロスガード90) | 高性能樹脂サッシ(高機能Low-Eガラス) | オール電化住宅 | 蓄電池 | 平屋 | 4LDK | LED照明 | 和室・畳コーナー | ウォークインクローゼット | 室内物干しスペース | エアコン(LDK) | 対面キッチン | IHクッキングヒーター | 食器洗い乾燥機 | カップボード | 両面開き三面鏡付き洗面化粧台 | 真空断熱保温浴槽 | エコキュート | 温水洗浄暖房機能付便座 | オリジナルトイレ収納 | 防犯警報装置 | 火災警報器 | 長期30年保証
区画番号 16 ZEH水準を達成した高気密・高断熱住宅です。小さなエネルギーで冷暖房でき、省エネな暮らしが実現します。
- 高性能仕様
- 設備充実
- 収納充実
- 安心安全
太陽光10kW以上搭載 | 耐震等級3 | 長期優良住宅 | 外壁全面タイル貼り | 全館床暖房 | 熱交換換気システム(ロスガード90) | 高性能樹脂サッシ(高機能Low-Eガラス) | オール電化住宅 | 蓄電池 | 平屋 | 4LDK | LED照明 | 和室・畳コーナー | ウォークインクローゼット | 室内物干しスペース | エアコン(LDK) | 対面キッチン | IHクッキングヒーター | 食器洗い乾燥機 | カップボード | 両面開き三面鏡付き洗面化粧台 | 真空断熱保温浴槽 | エコキュート | 温水洗浄暖房機能付便座 | オリジナルトイレ収納 | 防犯警報装置 | 火災警報器 | 長期30年保証
区画番号 16 現地外観写真です。
- 高性能仕様
- 設備充実
- 収納充実
- 安心安全
太陽光10kW以上搭載 | 耐震等級3 | 長期優良住宅 | 外壁全面タイル貼り | 全館床暖房 | 熱交換換気システム(ロスガード90) | 高性能樹脂サッシ(高機能Low-Eガラス) | オール電化住宅 | 蓄電池 | 平屋 | 4LDK | LED照明 | 和室・畳コーナー | ウォークインクローゼット | 室内物干しスペース | エアコン(LDK) | 対面キッチン | IHクッキングヒーター | 食器洗い乾燥機 | カップボード | 両面開き三面鏡付き洗面化粧台 | 真空断熱保温浴槽 | エコキュート | 温水洗浄暖房機能付便座 | オリジナルトイレ収納 | 防犯警報装置 | 火災警報器 | 長期30年保証
区画番号 16 リビングの様子です。
- 高性能仕様
- 設備充実
- 収納充実
- 安心安全
太陽光10kW以上搭載 | 耐震等級3 | 長期優良住宅 | 外壁全面タイル貼り | 全館床暖房 | 熱交換換気システム(ロスガード90) | 高性能樹脂サッシ(高機能Low-Eガラス) | オール電化住宅 | 蓄電池 | 平屋 | 4LDK | LED照明 | 和室・畳コーナー | ウォークインクローゼット | 室内物干しスペース | エアコン(LDK) | 対面キッチン | IHクッキングヒーター | 食器洗い乾燥機 | カップボード | 両面開き三面鏡付き洗面化粧台 | 真空断熱保温浴槽 | エコキュート | 温水洗浄暖房機能付便座 | オリジナルトイレ収納 | 防犯警報装置 | 火災警報器 | 長期30年保証
区画番号 16 ダイニング・キッチンの様子です。
- 高性能仕様
- 設備充実
- 収納充実
- 安心安全
太陽光10kW以上搭載 | 耐震等級3 | 長期優良住宅 | 外壁全面タイル貼り | 全館床暖房 | 熱交換換気システム(ロスガード90) | 高性能樹脂サッシ(高機能Low-Eガラス) | オール電化住宅 | 蓄電池 | 平屋 | 4LDK | LED照明 | 和室・畳コーナー | ウォークインクローゼット | 室内物干しスペース | エアコン(LDK) | 対面キッチン | IHクッキングヒーター | 食器洗い乾燥機 | カップボード | 両面開き三面鏡付き洗面化粧台 | 真空断熱保温浴槽 | エコキュート | 温水洗浄暖房機能付便座 | オリジナルトイレ収納 | 防犯警報装置 | 火災警報器 | 長期30年保証
区画番号 16 作業側の様子です。
- 高性能仕様
- 設備充実
- 収納充実
- 安心安全
太陽光10kW以上搭載 | 耐震等級3 | 長期優良住宅 | 外壁全面タイル貼り | 全館床暖房 | 熱交換換気システム(ロスガード90) | 高性能樹脂サッシ(高機能Low-Eガラス) | オール電化住宅 | 蓄電池 | 平屋 | 4LDK | LED照明 | 和室・畳コーナー | ウォークインクローゼット | 室内物干しスペース | エアコン(LDK) | 対面キッチン | IHクッキングヒーター | 食器洗い乾燥機 | カップボード | 両面開き三面鏡付き洗面化粧台 | 真空断熱保温浴槽 | エコキュート | 温水洗浄暖房機能付便座 | オリジナルトイレ収納 | 防犯警報装置 | 火災警報器 | 長期30年保証
区画番号 16 収納もたくさんあり、便利ですね!
- 高性能仕様
- 設備充実
- 収納充実
- 安心安全
太陽光10kW以上搭載 | 耐震等級3 | 長期優良住宅 | 外壁全面タイル貼り | 全館床暖房 | 熱交換換気システム(ロスガード90) | 高性能樹脂サッシ(高機能Low-Eガラス) | オール電化住宅 | 蓄電池 | 平屋 | 4LDK | LED照明 | 和室・畳コーナー | ウォークインクローゼット | 室内物干しスペース | エアコン(LDK) | 対面キッチン | IHクッキングヒーター | 食器洗い乾燥機 | カップボード | 両面開き三面鏡付き洗面化粧台 | 真空断熱保温浴槽 | エコキュート | 温水洗浄暖房機能付便座 | オリジナルトイレ収納 | 防犯警報装置 | 火災警報器 | 長期30年保証
区画番号 16 物を置けるスペースもあり安心です。
- 高性能仕様
- 設備充実
- 収納充実
- 安心安全
太陽光10kW以上搭載 | 耐震等級3 | 長期優良住宅 | 外壁全面タイル貼り | 全館床暖房 | 熱交換換気システム(ロスガード90) | 高性能樹脂サッシ(高機能Low-Eガラス) | オール電化住宅 | 蓄電池 | 平屋 | 4LDK | LED照明 | 和室・畳コーナー | ウォークインクローゼット | 室内物干しスペース | エアコン(LDK) | 対面キッチン | IHクッキングヒーター | 食器洗い乾燥機 | カップボード | 両面開き三面鏡付き洗面化粧台 | 真空断熱保温浴槽 | エコキュート | 温水洗浄暖房機能付便座 | オリジナルトイレ収納 | 防犯警報装置 | 火災警報器 | 長期30年保証
区画番号 16 シューズボックスがあり収納も助かりますね!
- 高性能仕様
- 設備充実
- 収納充実
- 安心安全
太陽光10kW以上搭載 | 耐震等級3 | 長期優良住宅 | 外壁全面タイル貼り | 全館床暖房 | 熱交換換気システム(ロスガード90) | 高性能樹脂サッシ(高機能Low-Eガラス) | オール電化住宅 | 蓄電池 | 平屋 | 4LDK | LED照明 | 和室・畳コーナー | ウォークインクローゼット | 室内物干しスペース | エアコン(LDK) | 対面キッチン | IHクッキングヒーター | 食器洗い乾燥機 | カップボード | 両面開き三面鏡付き洗面化粧台 | 真空断熱保温浴槽 | エコキュート | 温水洗浄暖房機能付便座 | オリジナルトイレ収納 | 防犯警報装置 | 火災警報器 | 長期30年保証
区画番号 16 手すりやカウンターもあります。
- 高性能仕様
- 設備充実
- 収納充実
- 安心安全
太陽光10kW以上搭載 | 耐震等級3 | 長期優良住宅 | 外壁全面タイル貼り | 全館床暖房 | 熱交換換気システム(ロスガード90) | 高性能樹脂サッシ(高機能Low-Eガラス) | オール電化住宅 | 蓄電池 | 平屋 | 4LDK | LED照明 | 和室・畳コーナー | ウォークインクローゼット | 室内物干しスペース | エアコン(LDK) | 対面キッチン | IHクッキングヒーター | 食器洗い乾燥機 | カップボード | 両面開き三面鏡付き洗面化粧台 | 真空断熱保温浴槽 | エコキュート | 温水洗浄暖房機能付便座 | オリジナルトイレ収納 | 防犯警報装置 | 火災警報器 | 長期30年保証
区画番号 16 主寝室です。
- 高性能仕様
- 設備充実
- 収納充実
- 安心安全
太陽光10kW以上搭載 | 耐震等級3 | 長期優良住宅 | 外壁全面タイル貼り | 全館床暖房 | 熱交換換気システム(ロスガード90) | 高性能樹脂サッシ(高機能Low-Eガラス) | オール電化住宅 | 蓄電池 | 平屋 | 4LDK | LED照明 | 和室・畳コーナー | ウォークインクローゼット | 室内物干しスペース | エアコン(LDK) | 対面キッチン | IHクッキングヒーター | 食器洗い乾燥機 | カップボード | 両面開き三面鏡付き洗面化粧台 | 真空断熱保温浴槽 | エコキュート | 温水洗浄暖房機能付便座 | オリジナルトイレ収納 | 防犯警報装置 | 火災警報器 | 長期30年保証
区画番号 16 子供部屋です。
- 高性能仕様
- 設備充実
- 収納充実
- 安心安全
太陽光10kW以上搭載 | 耐震等級3 | 長期優良住宅 | 外壁全面タイル貼り | 全館床暖房 | 熱交換換気システム(ロスガード90) | 高性能樹脂サッシ(高機能Low-Eガラス) | オール電化住宅 | 蓄電池 | 平屋 | 4LDK | LED照明 | 和室・畳コーナー | ウォークインクローゼット | 室内物干しスペース | エアコン(LDK) | 対面キッチン | IHクッキングヒーター | 食器洗い乾燥機 | カップボード | 両面開き三面鏡付き洗面化粧台 | 真空断熱保温浴槽 | エコキュート | 温水洗浄暖房機能付便座 | オリジナルトイレ収納 | 防犯警報装置 | 火災警報器 | 長期30年保証
区画番号 16 子供部屋です。
- 高性能仕様
- 設備充実
- 収納充実
- 安心安全
太陽光10kW以上搭載 | 耐震等級3 | 長期優良住宅 | 外壁全面タイル貼り | 全館床暖房 | 熱交換換気システム(ロスガード90) | 高性能樹脂サッシ(高機能Low-Eガラス) | オール電化住宅 | 蓄電池 | 平屋 | 4LDK | LED照明 | 和室・畳コーナー | ウォークインクローゼット | 室内物干しスペース | エアコン(LDK) | 対面キッチン | IHクッキングヒーター | 食器洗い乾燥機 | カップボード | 両面開き三面鏡付き洗面化粧台 | 真空断熱保温浴槽 | エコキュート | 温水洗浄暖房機能付便座 | オリジナルトイレ収納 | 防犯警報装置 | 火災警報器 | 長期30年保証
周辺環境
物件概要
以下のお引き渡し日以降の場合の価格で表示しています。
2026年06月30日以降(ラポールタウン名寄 16)
宅建業免許:静岡県(2)第13894号
東京都江東区木場五丁目10-10
03-5245-0111
宅建業免許:国土交通大臣(7)第5369号
建設業許可:国土交通大臣(特-7)第10540号
公益社団法人首都圏不動産公正取引協議会加盟
一般社団法人全国住宅産業協会加盟
ラポールタウン名寄 についてもっと詳しく!
土地探しや家づくりに
お困りではありませんか?
お土地探しや資金計画など、何でもお気軽にご相談ください。
お客様の理想の住まいづくりを、サポートさせていただきます。
土地探しでお困りですか?
良い土地を見つけるための参考書
パンフレットを、無料でプレゼント。
失敗しないためのポイントをご紹介します。





