イイコトテラス西条田口
INFORMATION
区画6 ご成約ありがとうございました。
区画5 ご成約ありがとうございました。
区画8 ご成約ありがとうございました。
開催中のイベント
【事前予約制】WEBからのご予約で、特典プレゼント!
全館床暖房や大容量太陽光の高性能住宅。ぜひこの機会にご見学ください!期間中のご見学で01~03のお好きな特典をおひとつプレゼント!現地にスタッフは常駐しておりませんので「資料請求・見学予約」より事前のご予約をお願いします。
一条だけの新規分譲地が
広島大学近くに誕生!
車もバスもアクセス良好で、
西へ東への移動が便利な好立地。
東広島呉自動車道へのアクセスも良く、車での移動がしやすいです。広大バス停から西条駅までも本数が多いのでバスアクセスも良好です。
閑静な住宅街にあり、ゆとりのある6m幅道路で安心して駐車・運転ができます。歩道があるのでお子様も安心して暮らせます。
【太陽光&蓄電池搭載】オトクな光熱費で快適生活!蓄電池も搭載で、災害時も安心!
自宅で電気をつくり、自宅で使える太陽光発電を搭載しています。災害による停電時にも安心です。年々上昇傾向の電気代。太陽光発電・蓄電池なら、光熱費を抑えて毎月の電気代をお助け!
ZEHを超える 【断熱等級6】 の分譲住宅です。
断熱性能・エネルギー消費性能が高く、ZEH水準を達成した高気密・高断熱住宅です。小さなエネルギーで家中を冷暖房できるので、年間を通じて快適な室温を保ちながら、省エネな暮らしが実現します。
区画情報
(54.48坪)
(32.09坪)
(52.71坪)
(32.51坪)
見学予約・資料請求はお気軽に!
分譲地や住まいづくりに関するご質問など
お電話でお気軽にご相談ください!
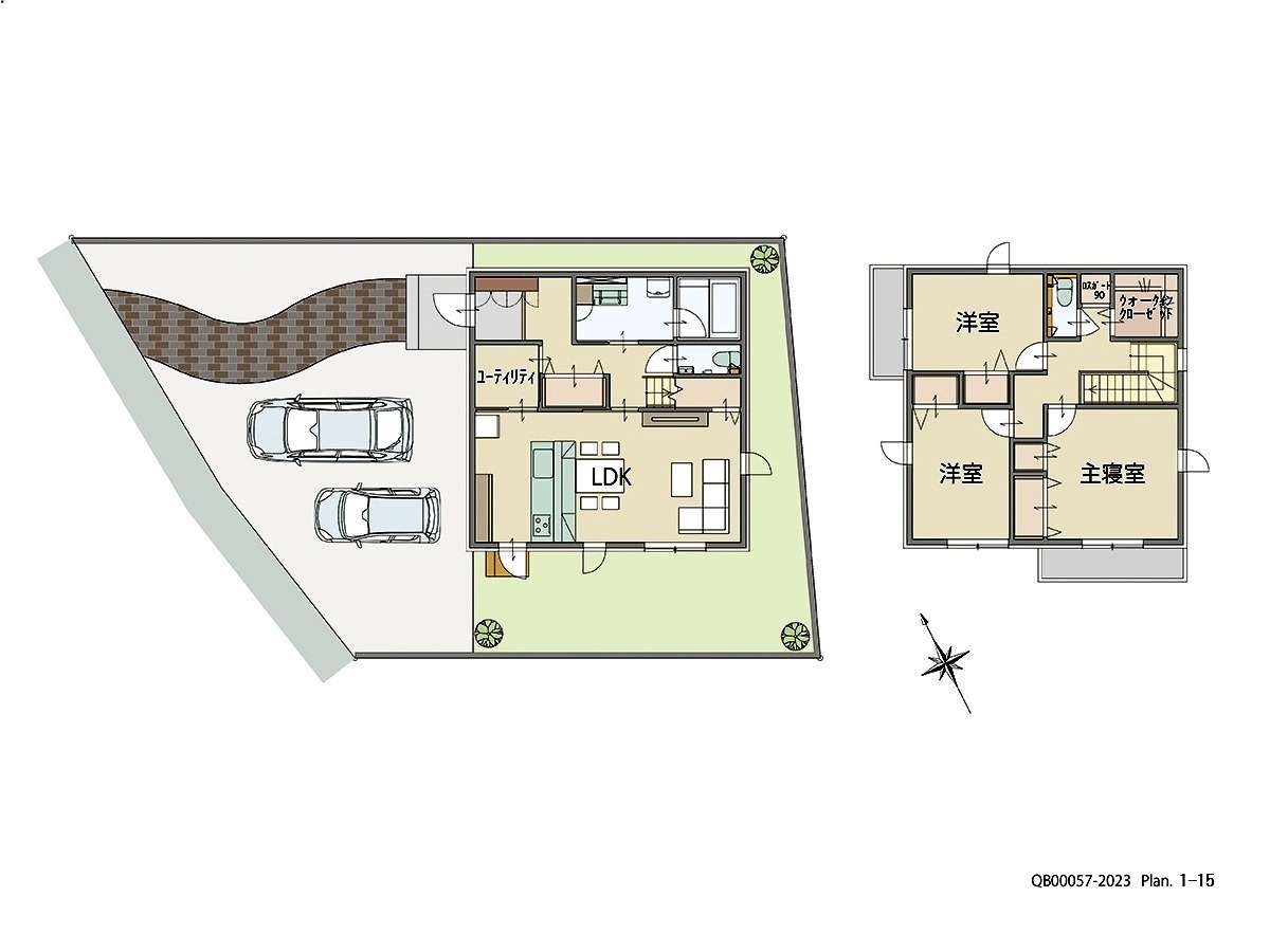
間取り図
アクセス
東広島呉自動車道へのアクセスも良く、車での移動がしやすいです。
広大バス停から西条駅までも本数が多いのでバスアクセスも良好です。
閑静な住宅街にあり、ゆとりのある6m幅道路で安心して駐車・運転ができます。
歩道があるのでお子様も安心して暮らせます。
近隣には小学校があり、広い校区の中では比較的近い立地。子育て家族にぴったりの分譲地です。
周辺環境
物件概要
広島県福山市山手町1087-5
084-983-0861
宅建業免許:広島県知事(1)第11651号
東京都江東区木場五丁目10-10
03-5245-0111
宅建業免許:国土交通大臣(7)第5369号
建設業許可:国土交通大臣(特-2)第10540号
公益社団法人首都圏不動産公正取引協議会加盟
一般社団法人全国住宅産業協会加盟
イイコトテラス西条田口 7:2026年11月
イイコトテラス西条田口 7:2026年12月
一条の住まいづくり
私たちのこだわり
それは「家は、性能。」です。
様々な住まいの性能を追求し、
末永く快適に暮らせる
高性能な住宅をご提供しています。
地震に強い家づくり
実験で確かめられた本物の強さ
国の定める耐震性能は「耐震等級3」が最⾼等級。⼀条の住まいは標準仕様でこのレベルをクリアし、それを超える厳しい⾃社基準を設定して研究開発を⾏っています。30年以上も前から数多くの実大実験を繰り返し、より確かな安心・安全を追及してきました。
高気密・高断熱住宅で
「快適」で「省エネ」な暮らし
一条の住まいは高気密・高断熱。夏は日射や熱気をさえぎることで冷房が効きやすく、冬は外の冷気をシャットアウトして全館床暖房で暖かです。小さなエネルギーで家中を冷暖房できるから、いつも快適な室温を保っていても省エネな暮らしが実現します。
安⼼・安全のための住まいの性能と
コストパフォーマンスを両立
一条工務店は、「高い性能が叶える理想的な暮らし」と「皆様に納得してお求め頂ける価格」の両方を満たす住まいを目指しています。自社グループ工場での開発・生産を行うことで、「品質を高めながら、コストを軽減する」取り組みを日々行っています。
見学予約・資料請求はお気軽に!
分譲地や住まいづくりに関するご質問など
お電話でお気軽にご相談ください!




